Eingabehilfen öffnen
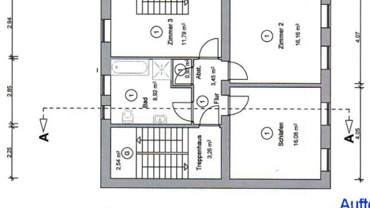
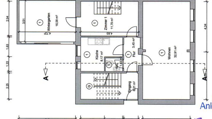
Tauchen Sie ein in das besondere Flair dieser exklusiven 5-Zimmer Eigentumswohnung, die sich über zwei Etagen erstreckt und großzügige 137 Quadratmeter Wohnfläche bietet. Die intelligente Raumaufteilung erstreckt sich über das Erdgeschoss und das Obergeschoss, wodurch ein Wohnkonzept entsteht, das Raum für Komfort und vielfältige Nutzungsmöglichkeiten schafft. Eine Teilung der Wohnung in 2 separate Einheiten ist möglich.
Das Erdgeschoss begrüßt Sie mit einem einladenden Flur, der Zugang zu einem Gäste-WC, dem großzügigen Wohnzimmer sowie der Küche mit Einbauküche gewährt. Ein zusätzliches Zimmer, welches einen Zugang zum Obergeschoss ermöglicht, erweitert die Möglichkeiten dieser Wohnung. Von diesem Zimmer aus gelangen Sie in den bezaubernden Wintergarten, der als lichtdurchfluteter Rückzugsort dient und zu entspannten Stunden einlädt.
Das Obergeschoss beeindruckt mit einem stilvollen Vollbad, das außerdem mit einer Dusche ausgestattet ist, und zwei weiteren Schlafzimmern, die Ruhe und Privatsphäre garantieren. Die harmonische Gestaltung der Räume schafft eine angenehme Wohnatmosphäre.
Die Wohnung ist aktuell zu einer NKM i.H.v. 850,00€ vermietet. Das monatliche Wohngeld beträgt 305,32€ (inkl. 57,38€ Rücklage). Die gemeinschaftliche Erhaltungsrücklage betrug per 31.12.2023 0,00€.
Die Immobilie wurde 2023 nach WEG aufgeteilt. Die MIeter haben somit einen besonderen Kündigungsschutz gem. §577a BGB.
Die angebotene Etagenwohnung befindet sich in Neumünster, einer lebendigen Stadt im Herzen Schleswig-Holsteins, die durch ihre hervorragende Infrastruktur besticht. Diese attraktive Wohnlage ist insbesondere für ihre Nähe zum Stadtzentrum bekannt, welches lediglich einen Kilometer entfernt liegt. Dies ermöglicht es den Bewohnern, schnell und unkompliziert alle Annehmlichkeiten sowie kulturellen Angebote der Innenstadt zu nutzen.
Einkaufsmöglichkeiten des täglichen Bedarfs sind in unmittelbarer Nähe verfügbar, nur einen halben Kilometer entfernt, was Ihnen kurze Wege und eine bequeme Versorgung gewährleistet. Darüber hinaus bietet der öffentliche Nahverkehr eine Haltestelle in nur 100 Metern Entfernung, was schnelle Verbindungen innerhalb der Stadt und darüber hinaus ermöglicht.
Die Umgebung ist geprägt von einer ausgewogenen Mischung aus urbanem Flair und grünen Erholungsräumen und lädt zu entspannten Spaziergängen und Freizeitaktivitäten im Freien ein. Diese Lage bietet eine ideale Kombination aus Stadtnähe und angenehmem Wohnkomfort, perfekt für Singles, Paare oder kleine Familien.
Die Immobilie wurde 2023 nach WEG aufgeteilt. Die MIeter haben somit einen besonderen Kündigungsschutz gem. §577a BGB.