Die Liegenschaft befindet sich in einer ruhigen Ortsrandlage am Gleschendorfer Weg, umgeben von weitläufigen Wiesen, Feldern und kleineren Waldflächen. Die Umgebung strahlt ländliche Ruhe und eine naturnahe Wohnatmosphäre aus – ideal für Menschen, die Entspannung und Erholung suchen.
Der Ortskern von Giekau ist nur wenige Autominuten entfernt und bietet Grundversorgung (Bäcker, Dorfladen), Kitas sowie Grundschule. Die Ostseeküste ist in etwa 10 bis 15 Minuten mit dem Auto erreichbar – perfekt für schnelle Ausflüge ans Wasser.
Gute Anbindung & Infrastruktur
Durch die Nähe zur B76 erreichen Sie Lütjenburg und Plön binnen 10 bis 15 Minuten, wo Ihnen umfangreiche Einkaufsmöglichkeiten, weiterführende Schulen, Ärzte und kulturelle Einrichtungen zur Verfügung stehen.
Die Landeshauptstadt Kiel ist in ca. 30 Minuten erreichbar – für Berufstätige und Freizeitpendler ideal.
Dank der ruhigen, grünen Lage und der vorhandenen Infrastruktur eignet sich das Objekt bestens für Familien, Mehrgenerationenhaushalte oder auch kombinierten Wohnen-Arbeiten-Betrieb.
Parkähnliches Grundstück
Das weitläufige Grundstück erinnert an einen privaten Park. Alte Gehölze, großzügige Rasenflächen und die durchlässige Bebauung schaffen ein Gefühl von Großzügigkeit und Natürlichkeit. Perfekt für Gartenliebhaber oder Hobbygärtner.
Infrastruktur
Kindergarten
1 km
Grundschule
6 km
Realschule
6 km
Gymnasium
6 km
Zentrum
6 km
Einkaufsmöglichkeiten
6 km
Objektbeschreibung
Dieses großzügige Einfamilienhaus mit ca. 294,3 m² Wohnfläche bietet viel Platz, Komfort und Flexibilität – ideal für Familien mit Raumanspruch oder Mehrgenerationenwohnen.
**Erdgeschoss – Offenes Wohnen**
Beim Betreten begegnet Ihnen ein heller Eingangsbereich mit Garderobenplatz und Gäste-WC. Der offene Wohnbereich bietet eine geräumige Esszone und eine moderne Küche mit Kochinsel. Das Wohnzimmer mit Kaminofen schafft Gemütlichkeit und gewährt Zugang zur Terrasse.
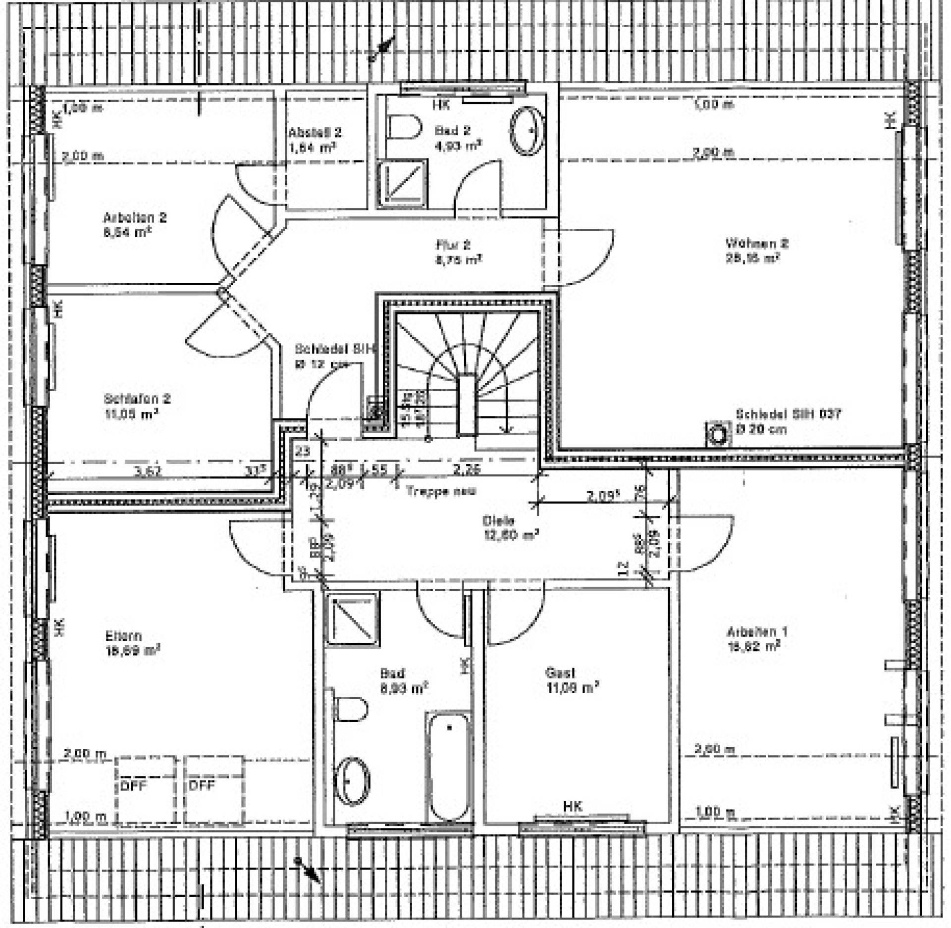
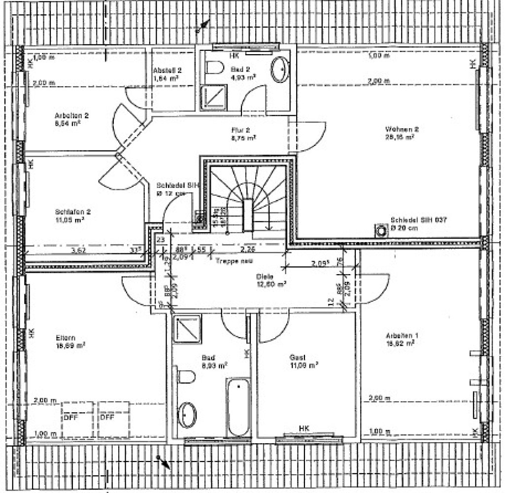
**Obergeschoss – Privat & individuell**
Hier finden Sie ein Büro (auch als Schlafzimmer nutzbar), ein Ankleidezimmer, ein Badezimmer mit Wanne und Dusche sowie ein großes Schlafzimmer. Zusätzlich gibt es eine separate Wohneinheit mit Wohnzimmer, Küche, Bad und Schlafzimmer.
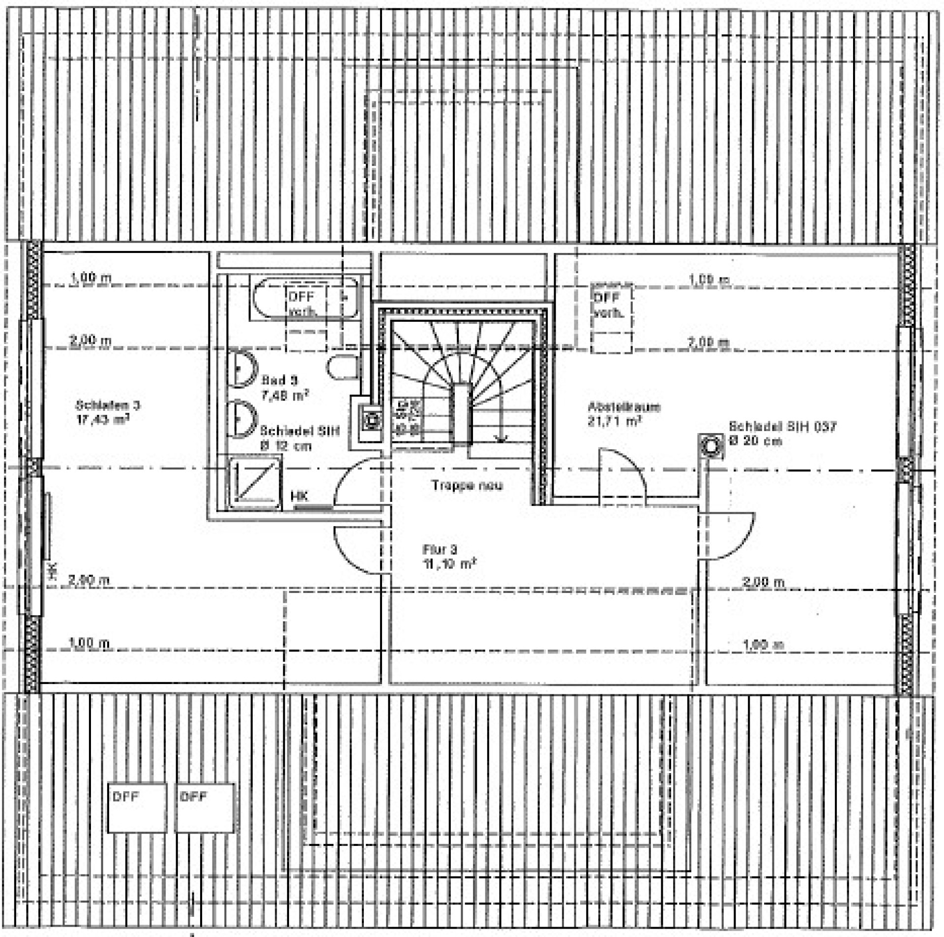
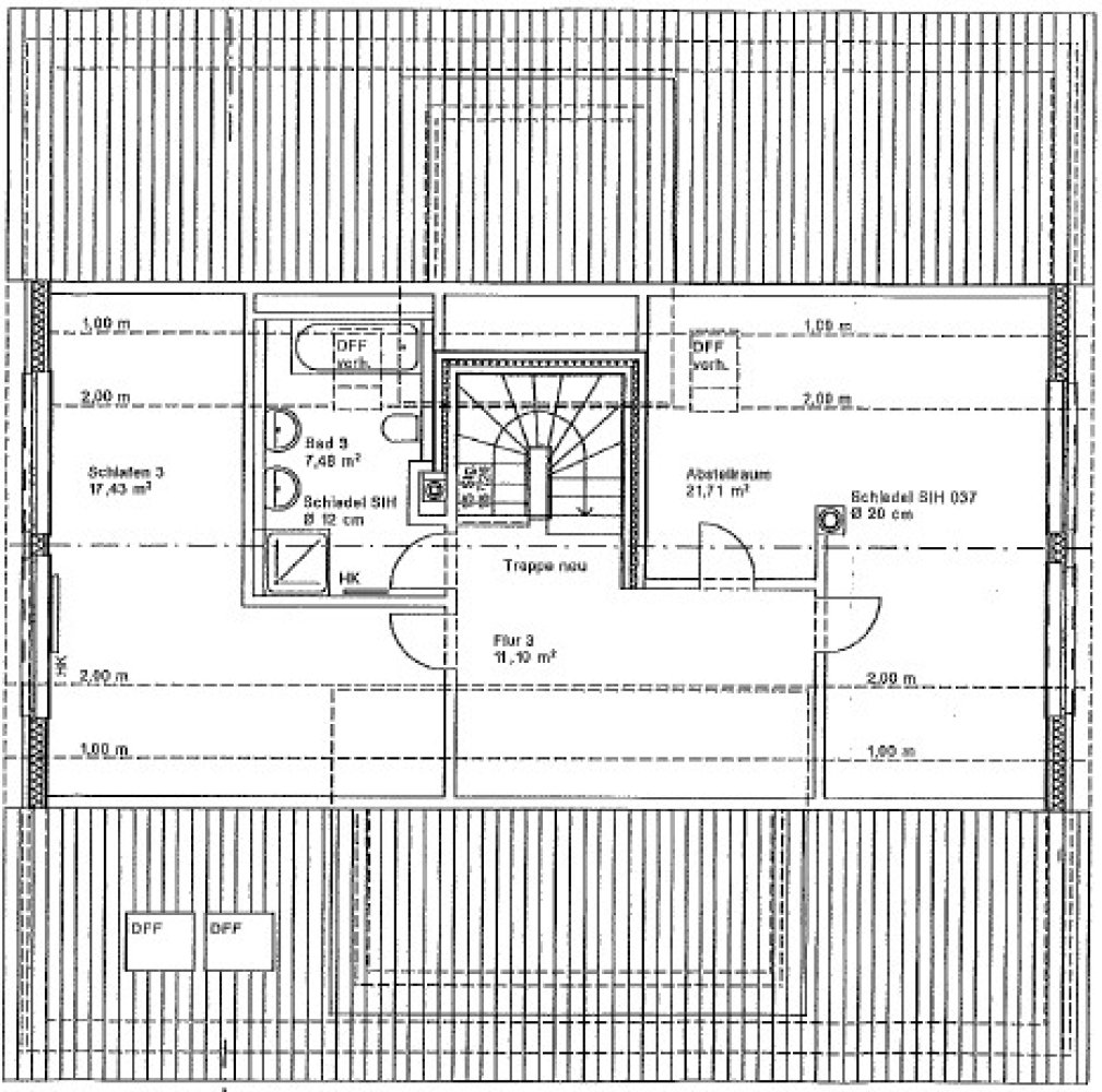
**Dachgeschoss – Charme & Aussicht**
Diese Wohneinheit besticht durch Wohnzimmer mit Sichtbalken, integrierter Küche, Schlafzimmer, modernem Duschbad und Panoramablick auf See und Landschaft.
**Keller – Vielseitig nutzbar**
Der voll unterkellerte Bereich bietet Abstellräume, Werkstatt, Waschkeller und weitere Flächen.
**Einliegerwohnung – Vermietungspotenzial**
Eine Einliegerwohnung mit ca. 71,37 m² ist vermietet zu 510 € monatlich und bietet zusätzliche Einnahmen oder Nutzung für Angehörige.
**Außenbereich – Natur & Funktionalität**
Das parkähnliche Grundstück bietet Privatsphäre und Raum zur Entfaltung. Für Fahrzeuge stehen ein Doppelcarport, eine Doppelgarage und weitere Stellplätze bereit.
Sonstiges
Ausstattung
Differenzierung
Standard
Kamin
Heizungsart
Zentralheizung
Befeuerung
Gas
Kabel / Sat- TV
Unterkellert
Ja
Gäste-WC
Einfamilienhaus mit Einliegerwohnung, 11 Räume, Gäste-WC, Vollbad mit Dusche, 3x Duschbad-WC, Kaminofen, Carport, Garage, 2 Terrassen, Garten.